Durch die Empfehlung eines Kunden, dessen Loxone Installation wir gerettet haben, bekamen wir dieses Projekt in Eschborn.
Es zahlt sich am Ende immer aus, wenn man gute Arbeit leistet, auch wenn der Profit manchmal auf der Strecke bleibt. So geschehen bei einem Kunden aus Babenhausen, dessen Loxone Installation durch einen Loxone Partner verpfuscht wurde und wir seine Installation gerettet haben. Es war sehr viel Aufwand, den wir sehr fair abgerechnet haben. Dafür hat dieser Kunde uns sofort mit Erfolg weiterempfohlen.
Bei dem Projekt in Eschborn haben wir das Ehepaar intensiv beraten. Die Bauherren waren von der gewerkübergreifenden Beratung sehr angetan und am Ende war es für sie ganz klar, dass so ein Projekt nur mit einer detaillierten Vorplanung und Dokumentation funktionieren kann. Das erzählen wir zwar jedem Kunden, aber diesmal kam das Feedback eines geschädigten aus dem Freundeskreis. Hier gab es keine Zweifel an der Notwendigkeit dieser Dienstleitung.
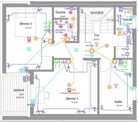
Der auszuführende Elektrobetrieb kommt vom Bauträger. Diesmal macht dieser keine Probleme, im Gegenteil. Das ist jetzt der zweite Fremdbetrieb, mit dem wir hervorragend zusammenarbeiten. Problem macht der Bauleiter und Architekt. In einen Technikraum mit 4m² sollen rein: Heizung, Warmwasserspeicher, Staubsaugeranlage, Hebeanlage, Solarthermie, Waschmaschine, Trockner und Elektroverteilerschrank. Das ist leider zu viel des Guten. Hier hat aber der Elektriker vor Ort hervorragende Arbeit geleistet.
Im Herbst 2017 ist Einzug und dann gibt es weitere Bilder.




